');

ALBERO 21 kW parem või vasak

Tavahind: 2 915.00 €
ALBERO 21 kW parem või vasak
Tootekood: ALAQS90X41.LG-D
  • Veesärgi (küttekeha) valmistamisel on kasutatud kvaliteetset P265GH katlaterast paksusega 4 mm.
  • Kasutatud on tugevdatud ukseprofiili.
  • Sisseehitatud mähis on automaatne jahuti.
  • Suitsugaaside järelpõlemise süsteem ja veesärgi paigutamine kolde kohale tagavad padrunite äärmiselt kõrge efektiivsuse.
  • Õhukardin annab "puhta klaasi" efekti.
  • Lihtne puhastamine on võimalik tänu malmist restile, millel on eemaldatav tuhakast.
     
  • Võimalus töötada nii avatud kui ka suletud süsteemiga.
  • Sobib soojustagastusega kodudesse.
  • Sisseehitatud sisselaskeava drosselklapiga võimaldab sujuvat ja integreeritud sissetuleva õhu hulga reguleerimist.

MUU VARUSTUS:

  1. keraamiline deflektor,
  2. vertikaalsed leegitorud,
  3. terasest toru,
  4. reguleeritavad jalad (+4 cm),
  5. radiaatorid.

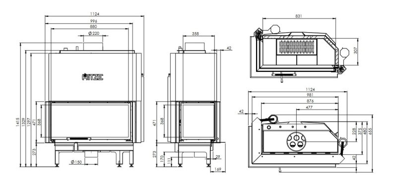
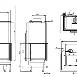
Tehnilised andmed

Energiaklass: A+
Ökodisain +
BlmSchV II +
15a B-VG +
Küttekoormuse vahemik [kW] 10,5-27
Veesärgi maht (dm³) 65
Kamina klaasi mõõtmed (mm) 900×410
Nimivõimsus (kW) 21
Veeringu soojusvõimsus (kW) 7,8
Soojuslik kasutegur [%] 81,5
CO heitkogused 13% O2 ​​kontsentratsioonil (g/m³) 0,935
Õietolmu heitkogused 13% O2 ​​kontsentratsioonil (g/m³) 0,039
Väljalaskevõrede aktiivne pindala (cm²) 1470-1680
Sisselaskevõrede aktiivne pindala (cm²) 840-1370
Suitsutoru läbimõõt [mm] 220
Materjal: katla teraseklass P265GH vastavalt standardile EN 10028-2
Sisselaskeava läbimõõt [mm] 150

Lisaks - soojust akumuleerivad paneelid - 279,0 eur

Kaal: 323
Tekkis küsimusi - saada kiri!